Водоподготовка в Абакане

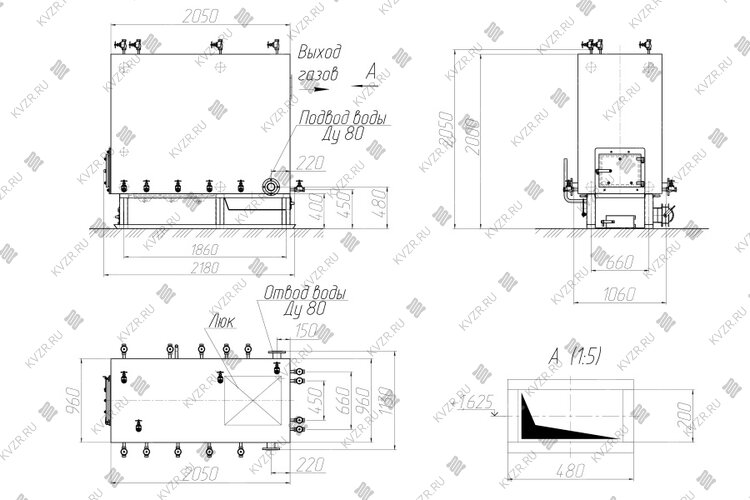
Тип
Вместимость бака-солерастворителя (м³)
Производительность (м³/ч)
Площадь сечения (см²)
Рабочая среда
Давление воды, не более (МПа (кгс/см²))
Цена по запросу
Цена по запросу
Цена по запросу
459 230 р. Цена с НДС
550 230 р. Цена с НДС
719 230 р. Цена с НДС
Цена по запросу
Цена по запросу
Цена по запросу
Цена по запросу
Цена по запросу
Цена по запросу
Цена по запросу
Цена по запросу
Цена по запросу

Водоподготовка

Водоподготовка применяется для обработки воды, которая поступает из природного водоисточника. Водоподготовка приводит качество воды в соответствие с необходимыми требованиями.

Фильтрация и очистка воды в котельных предотвращает образование на трубопроводах, теплообменниках, внутренних поверхностях водогрейных котлов минеральных отложений.

В случае возникновения минеральных отложений может привести к небольшим потерям мощности, иногда полный вывод из строя котельной из-за закупоривания внутренних конструкций водогрейного оборудования.

Реагентная очистка от накипи также сокращает срок эксплуатации котла.

При использовании реагентов следует наиболее тщательно подбирать систему водоподготовки в котельных.

Водоподготовительные установки ВПУ используются для подготовки воды перед подачей ее в паровой котел или для подпитки водогрейных котлов отопительных котельных. Аппарат антинакипной установки АНУ осуществляет защиту от накипи водогрейных котлов, пароводяных и водоводяных подогревателей, трубопроводов и нагревательных приборов тепловых сетей, теплообменников и конденсаторов систем водяного охлаждения.

Система комплексон применяется для противонакипной и противокоррозионной обработки воды путем дозирования в подпиточную воду ингибиторов накипеобразования и ингибиторов коррозии, реагентов для химического обескислороживания, а также для проведения химических очисток теплоэнергетического оборудования путем дозирования растворов комплексонов, то есть для комплексонатной (комплексонной) водоводготовки.

Купить водоподготовку

Для того чтобы купить водоподготовку, вы можете оформить заявку в отделе сбыта по телефону (38-52) 29-97-41 (42), либо оформить заявку онлайн. Наши менеджеры дадут консультацию по подбору вспомогательного оборудования для выбранных вами моделей и рассчитают стоимость доставки до вашего региона и населенного пункта. Также предлагаем вам выполнить проект реконструкции котельной.

Проектирование, производство, монтаж, пуско-наладка котлов и котельного оборудования Подробнее о заводе analytics
background