Котел КВГМ 1.25 МВт мазутный (под отечественную горелку ГМГ) в Абакане

Версия
для печати
В наличии на складе Цена в рублях с НДС 887 000
Получите скидку
у менеджера
Цена на котел КВГМ 1.25 МВт мазутный (под отечественную горелку ГМГ) с доставкой от 927 000 рублей с НДС
Вид топкиМазутная горелка
Максимальная тепловая мощность, МВт1.25
ТопливоМазут, Жидкое
Отапливаемая площадь, м²9500-13600
Доставка ТК в г. Абакан и по России
Безналичный расчет
Подобрать котел по мощности
Опросный лист
Эту продукцию можно
купить в лизинг
  • Технические
    характеристики
  • Описание
    товара
  • Комплект
    поставки
  • Дополнительно
    потребуется
  • Сертификаты и
    гарантии
  • Отзывы о
    продукции
  • Видео
    обзор
  • Подбор
    котла

Газомазутный котел КВГМ надежная и эффективная водотрубная конструкция

  • Развитая конвективная поверхность нагрева снижает температуру уходящих газов 180-200°C - КПД 92%
  • Все элементы топочной камеры равномерно охлаждаются теплоносителем
  • Отсутствие трубных досок исключает деформации и разрывы сварных швов
  • Быстрый выход на режим и эксплуатационная гибкость
  • Высокая скорость потока теплоносителя (профилактика накипи) и минимальные требования к химводоподготовке

Технические характеристики котла КВГМ 1.25 МВт мазутного (под отечественную горелку ГМГ)

Тип Котел КВГМ
Тип отопительного котла Жидкотопливный
Бренд HeatExpert
Марка Котел КВГМ 1.25 на мазуте
Вид топки Мазутная горелка
Максимальная тепловая мощность, МВт 1.25
Максимальная тепловая мощность, кВт 1250
Максимальная тепловая мощность, Гкал 1.07
Диапазон регулирования мощности, % 40-100
Топливо Мазут, Жидкое
Низшая теплота сгорания проектного топлива, кКал/нм³ 9260
КПД котла на МАЗУТЕ, не менее, % 91.2
Расход МАЗУТА среднечасовой за отопительный сезон, м³/ч 71
Расход МАЗУТА при максимальной нагрузке котла, кг/ч 127
Расход условного топлива, кг/ч 168
Минимальная температура воды на входе в котел, °C 55
Максимальная температура воды на выходе из котла, °C 115
Давление воды, не более, МПа (кгс/см²) 0.3-0.6 (3-6)
Номинальный расход теплоносителя, м³/ч 43
Расход теплоносителя через котел min-max, м³/ч 32-54
Гидравлическое сопротивление при номинальном расходе, МПа (кгс/cм²) не более 0.07 (0.7)
Аэродинамическое сопротивление, Па (мм. вод. ст.) 175 (17.5)
Давление в топке, Па - 20 (- 2)
Объем уходящих газов, м³/ч 2500
Температура уходящих газов, не более, °С 187
Тяга Принудительная
Водяной объем котла, л 750
Объем топочной камеры, м³ 2.64
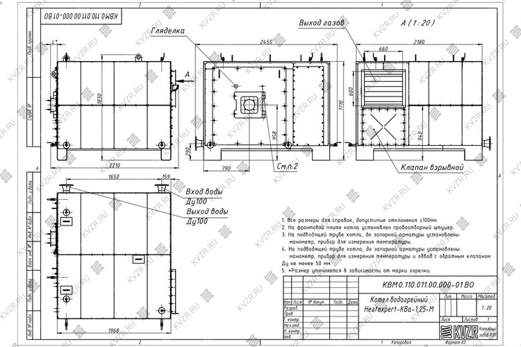
Размер топочной камеры, длина*ширина*высота, мм 1560х1300х1300
Присоединительные размеры по водяному тракту, Ду 100
Присоединительные размеры газохода уходящих газов, ширина*высота / сечение, мм/м² 660х600 / 0.46
Габаритные размеры котла, длина*ширина*высота, мм 2210х2455х1830
Масса, кг 3200
Вид Водогрейный
Конструкция котла водотрубная, горизонтальная
Количество контуров Одноконтурный
Размещение Напольный
Тип камеры сгорания Закрытый
Управление Электронное
Энергонезависимый Нет
Тип питания Трехфазное
Встроенный циркуляционный насос Нет
Встроенный расширительный бак Нет
Энергоэффективность Высокая
Отапливаемая площадь, м² от 9500 до 13600
Отапливаемый объем, м³ от 28500 до 40800

Водогрейный мазутный котел КВГМ 1.25 МВт в Абакане

Водогрейный мазутный котел КВГМ 1.25 МВт гладкотрубной трехходовой конструкции имеет существенные преимущества перед жаротрубными моделями благодаря следующим конструктивным особенностям:

  • Гладкотрубная поверхность нагрева воды имеет развитую поверхность, при компактных внешних размерах плотный пучок конвективных труб, расположенных в шахматном порядке и омываемый дымовыми газами в поперечном направлении обеспечивает высокую тепловую эффективность котельного блока. Газы в котле делают три хода – в топке, в первом конвективном пакете и во втором.
  • Существенное достоинство гладкотрубной конструкции - надежность. Трубная система собирается из труб ввариваемых в коллектор, также охлаждаемые теплоносителем, а не в трубные доски. В таком теплогенераторе отсутствует давление перегретых труб на трубную доску и напряжения в сварных швах, вызывающее деформации и разрыв швов.
  • Быстрый выход на режим и высокая маневренность – благодаря малому водяному объему.
  • В водотрубных котлах КВГМ 1.25 МВт на мазуте теплоноситель поступает через коллектор с перегородками и распределяется по трубной системе равномерными потоками с высокой скоростью. Такая схема движения потока воды исключает образование застойных зон, локальный перегрев поверхностей нагрева, местное выпадение солей и отложения накипи, и делает агрегат менее требовательным к качеству питательной воды.
  • И наконец, главное, водотрубный гладкотрубный котел КВГМ 1.25 МВт безопасен. Даже при внезапном снижении давления внутри теплогенератора до атмосферного не произойдет выделение пара, и он не взорвется.

Параметры работы

Водогрейные котлы КВГМ 1,25 МВт работающие на мазуте предназначены для получения горячей воды номинальной температурой на выходе из котла 95 (115) °С рабочим давлением до 0,6 (6,0) МПа (кгс/см), используется в системах централизованного теплоснабжения на нужды отопления и горячего водоснабжения. Котел КВГМ 1 25 МВт отопительный предназначен для работы в открытых и закрытых системах теплоснабжения с принудительной циркуляцией воды. Вид сжигаемого топлива: мазут.

Давление газа перед горелкой может быть как среднее, так и низкое.

Устройство водогрейного котла КВГМ 1.25 МВт

Стальной напольный водогрейный котел КВГМ 1.25 МВт на мазуте имеет газоплотные топочную камеру и конвективную часть. В заднем экране топочной камеры выполнено отверстие, в котором установлен взрывной клапан, предохраняющий конструкцию от разрушения при возникновении избыточного давления в топочной камере.

Промышленный водотрубный мазутный котел отопления КВГМ 1,25 МВт устанавливается на раму. Рама котла выполнена из швеллера и ставится на опоры. Опоры котла крепятся к ровной подготовленной поверхности анкерными болтами. Блок горелки закрепляется на фронтовой плите с помощью болтовых соединений. Фронтовая плита закрепляется при помощи шарниров и выполняет функцию люка, что позволяет осуществлять доступ в топочную камеру котла для осмотра и ремонтных работ без разбора обшивки и изоляции.

Изоляция выполняется из жаростойких материалов и стальных листов.

Выход газов в теплоагрегате происходит сверху. В случае необходимости возможно изготовление опускного газохода.

Применяемые горелочные устройства котла КВГМ 1.25 МВт на мазуте:

  • модель работает с отечественными горелками ГМГ.

Данные типы горелок имеют более широкий угол раскрытия факела, поэтому требуется более широкая топочная часть котла.

Котел работает под наддувом, без дымососа.

Купить котел КВГМ 1.25 МВт

Для того чтобы купить мазутный котел КВГМ 1.25 МВт в Абакане, вы можете сделать заявку в отдел сбыта по телефону (38-52) 29-97-41 (42), либо оформить заявку онлайн. Наши менеджеры дадут консультацию по подбору вспомогательного оборудования для выбранных вами моделей и рассчитают стоимость доставки до вашего региона и населенного пункта.

Котельный завод РЭП осуществляет производство котлов КВГМ 1.25 МВт в г Барнауле по типовым проектам и по техническому заданию, согласованному с заказчиком – производим доработки котла под вашу котельную: зеркальное отображение подвода теплоносителя, изготавливаем опускные газоходы, выполняем амбразуру под вашу модификацию горелочного устройства и подобное.

Марки и виды котлов КВГМ 1.25 МВт производства барнаульский котельный завод РЭП

Российские котлы КВГМ 1.25 МВт изготавливаются по ГОСТ 30735-2001 и имеют сертификат соответствия ТС ТР 010/2011, ТС ТР 016/2011, ТС ТР 032/2013.

Марка КВГМ 1.25 МВт расшифровывается, как котел водогрейный с теплопроизводительностью 1,25 МВт, 1250 КВт под отечественную газомазутную горелку. Также может применяться дополнительная аббревиатура например:

  • котел КВГМ 1.25 -95 | КВ-ГМ 1.25 -95 Н | КВ 1.25 -95 ГМ с температурой нагрева воды 95 °С;
  • котел КВГМ 1.25 -115 | КВ-ГМ 1.25 -115 Н | КВ 1.25 -115 ГМ с температурой нагрева воды 115 °С;

Комплект поставки котла КВГМ 1.25 МВт мазутного (под отечественную горелку ГМГ)

Цена водогрейного котла КВГМ 1.25 МВт мазутного (под отечественную горелку ГМГ) в Абакане включает в себя котельный блок в изоляции, вентили, затворы, манометры, термометры и предохранительные клапаны. Ниже приведена подробная информация.

Дополнительное вспомогательное оборудование для работы котла КВГМ 1.25 МВт мазутного (под отечественную горелку ГМГ)

Для эффективной и надежной работы котла КВГМ 1.25 МВт мазутного (под отечественную горелку ГМГ) в вашей котельной вам потребуется дополнительное оборудование - автоматика ЩУК, горелка импортного или отечественного производства, насос сетевой и подпиточный, регулятор давления газа (по необходимости), газоходы и переходники для газового тракта, дымовая труба. Мы предлагаем рассмотреть типовые варианты комплектации.

В случае если у вас на объекте уже имеется насосное и горелочное оборудования, мы можем проверить совместимость котла КВГМ 1.25 МВт мазутного (под отечественную горелку ГМГ) нашего производства и вашего оборудования.

Можем изготовить нестандартные узлы для выполнения быстрого монтажа котла - газоходы и узлы обвязки.

Типовую схему монтажа котла вы можете посмотреть во вкладке схемы подключения и монтаж.

  • автоматический розжиг и останов котла;
  • поддержание в заданных пределах температуры теплоносителя на выходе из котла путем позиционного регулирования мощности горелки;
  • плановый останов котла;
  • аварийный останов котла с выдачей аварийной звуковой и световой сигнализации, отображение причины останова на OLED индикаторе и запоминание ее;
  • автоматическая защита, обеспечивающая останов котла и блокировку его пуска при возникновении аварийных ситуаций.
Цена 170 560 рублей с НДС

Производим газоходы по индивидуальному заказу согласно схеме компоновки котельной. Системы газоходов могут включать в себя:

  • шиберы;
  • газоходы различного сечения;
  • переходы;
  • тройники;
  • карманы всасывающие дымососов.

Используется в качестве сетевого насоса в промышленных отопительных котельных

Цена 76 060 рублей с НДС

Используется в качестве сетевого насоса в промышленных отопительных котельных

Цена 57 360 рублей с НДС

Используется в качестве сетевого насоса в промышленных отопительных котельных

Цена 220 160 рублей с НДС

Используется в качестве сетевого насоса в промышленных отопительных котельных

Цена 232 760 рублей с НДС

Дымосос для удаления дымовых газов из котла.

Цена 101 730 рублей с НДС

Схемы подключения и монтаж котла КВГМ 1.25 МВт мазутного (под отечественную горелку ГМГ)

Водогрейный стальной отопительный котел КВГМ 1.25 МВт мазутный (под отечественную горелку ГМГ), предназначен для получения горячей воды номинальной температурой на выходе из котла от 95 до 115 °С рабочим давлением до 0,6 (6,0) МПа (кгс/см), используемой в системах централизованного теплоснабжения на нужды отопления, горячего водоснабжения. Устанавливается в производственных, промышленных и отопительных котельных.

Дополнительные услуги

Сертификат и качество котла КВГМ 1.25 МВт мазутного (под отечественную горелку ГМГ)

Водогрейные котлы производства Котельный завод "РЭП" соответствуют строгим стандартам качества и безопасности. Завод производит котлы КВГМ-1.25 в соответствии с требованиями ГОСТ 30735-3001 по Техническим Условиям завода.

Котлы имеют сертификаты соответствия Техническим регламентам Таможенного союза:

  • ТР ТС 010/2011 «О безопасности машин и оборудования».
  • ТР ТС 032/2013 - «О безопасности оборудования, работающего под избыточным давлением».
  • ТР ТС 016/2011 «О безопасности аппаратов, работающих на газообразном топливе»

Водогрейный котел КВГМ 1.25 МВт мазутный (под отечественную горелку ГМГ) имеет гарантийный срок 24 месяца и срок работы при соблюдении правил монтажа и эксплуатации оборудования 10 лет.

Расшифровка маркировки котла КВГМ 1.25 МВт мазутного (под отечественную горелку ГМГ):

  • К – котел
  • В – водогрейный
  • Г - работа на газе
  • М - работа на мазуте
  • 1,25 – теплопроизводительность 1.25 МВт (1250 кВт)
  • HeatExpert - зарегистрированный товарный знак Котельного завода "РЭП"

Дополнительные аббревиатуры в маркировке:

  • котел КВГМ 1.25 МВт - котел водогрейный газомазутный мощностью 1.25 МВт;
  • котел КВ-ГМ-1,25-115Н - номинальная температура воды на выходе до 115°С;
  • котел КВ ГМ 1.25-95 – максимальная температура нагрева воды на выходе 95 °C;
  • котел КВ-ГМ 1.25-115 – максимальная температура нагрева воды на выходе 115 °C;
  • котел КВ 1.25-95 ГМ – газомазутный котел с температурой воды 95 °C;
  • котел КВ 1.25 -115/ГМ – газомазутный котел с температурой воды 115 °C.
Сертификат на водогрейные котлы .jpg
Сертификат на водогрейные котлы
Знак товарный на водогрейные котлы HEATEXPERT .jpg
Товарный знак на водогрейные котлы HEATEXPERT

Отзывы о продукции

Отзыва о товаре пока нет, будьте первыми!

Мазутный водогрейный котел 1.25 ( - мощность 1.25 МВт; - топливо мазут; - температура 95 115 градусов; - отапливаемая площадь* от 10400 до 13600 м2; - отапливаемый объем* от 31200 до 40800 м3 (* диапазон для самого холодного и самого теплого региона РФ)); - применение для отопления производства, жилых зданий, цехов, складов, промышленных предприятий, теплиц, гаражей, больниц, школ, садов, для монтажа в модульных котельных.

Смотреть видеообзор на
Подберите необходимую мощность котла для вашего объекта
Тип здания
Регион
Населенный пункт
Вид топлива
Наружный объем здания (м3)
Отапливаемый подвал

Как подобрать мощность котла для вашего объекта

Подобрать мощность котла по площади важно учитывая не только площадь и объем здания, но и тип зданий и климатические данные региона.

На нашем сайте калькулятор расчета мощности котла учитывает тепло, требуемое на возмещение тепловых потерь через строительные конструкции и потери, вызываемые инфильтрацией (проникновением) наружного воздуха, через их неплотности и периодически открываемые двери.

Наружный строительный объем здания должен определяться умножением площади горизонтального сечения, взятого по внешнему обводу здания на уровне первого этажа на полную высоту здания, измеренную для панельных зданий: от уровня чистого пола (нулевой отметки) до верхней плоскости теплоизоляционного слоя чердачного покрытия, для остальных строений от уровня земли.

Расчетная температура воздуха в отапливаемых зданий принимается в зависимости от типа и назначения здания:

  • Гостиница, общежитие, административное здание, жилые дома + 20 °С;
  • Детские сады, ясли, поликлиники, амбулатории, диспансеры, больницы + 22 °С;
  • Высшие и средние специальные учебные заведения, общеобразовательные школы, школы интернаты, лаборатории, предприятия общественного питания, клубы, дома культуры + 16 °С;
  • Театры, магазины, пожарные депо + 15 °С;
  • Кинотеатры + 14 °С;
  • Гаражи + 10 °С;
  • Бани + 25 °С.

В случае если требуется отопление различных по типу зданий, теплопотребление каждого считается отдельно, полученные значения складываются и подобрать мощность котла нужно в соответствии с общей суммарной мощностью каждого отдельно стоящего задания.

Климатические условия вашего региона принимаются в соответствии с СП 131.13330 Строительная климатология. Данные по всем регионам России занесены в наш калькулятор расчета мощности котла.

Подобрать мощность котла по площади с учетом потребностей объекта в тепле на вентиляцию и горячую воду возможно только с более детальным расчетом. Его вы можете заказать в отделе сбыта котельного завода отправив заявку на электронный адрес sb@kvzr.ru или позвонив по телефонам (38-52) 29-97-41, 29-97-42.

Вопрос-ответ

  • Технические
    характеристики
  • Описание
    товара
  • Комплект
    поставки
  • Дополнительно
    потребуется
  • Сертификаты и
    гарантии
  • Отзывы о
    продукции
  • Видео
    обзор
  • Подбор
    котла
Документы завода
  • Сертификаты завода
  • Членство в СРО
  • Аттестованная технология сварки
  • Патенты на котельное оборудование
  • Товарные знаки
Смотреть все документы
Сертификат на водогрейные котлы на твердом и жидком топливе
Сертификат на водогрейные котлы на газе и жидком топливе
Сертификат на котлы отопительные паровые КП
Сертификат на топки
Сертификат на щиты управления
Сертификат на скиповые подъемники
Сертификат на золоуловители (циклоны)
Сертификат на конвейеры скребковые
Сертификат на дробилки
Сертификат на клапаны предохранительные
Сертификат на бункер-накопитель механизированный
Сертификат на автоматику газовых горелок
Сертификат о происхождении товара форма СТ-1
Членство в СРО
Членство в СРО
Аттестованная технология сварки
Свидетельство аттестованной технологии сварки
Патент на отопительный котел
Патент на водогрейный котел
Патент на топку водогрейного котла
Патент на водогрейный газовый котел
Патент на водогрейный котел
Патент на топочное устройство твердотопливного котла
Патент на водогрейный котел
HEATEXPERT товарный знак
KVZR товарный знак
STEAMEXPERT товарный знак
Другая похожая продукция
Котел КВа HeatExpert
Лизинг
Вид топкиГазовая горелка
Максимальная тепловая мощность, МВт1.25
ТопливоГаз
Отапливаемая площадь, м²10400-13600
723 000 р. Цена с НДС
Дизельный котел отопления
Лизинг
Вид топкиДизельная горелка
Максимальная тепловая мощность, МВт1.25
ТопливоДизель, Жидкое
Отапливаемая площадь, м²10400-13600
723 000 р. Цена с НДС
Котел КВ ГМ под отечественную горелку
Лизинг
Вид топкиМазутная горелка
Максимальная тепловая мощность, МВт1.2
ТопливоМазут, Жидкое
Отапливаемая площадь, м²9500-13600
905 000 р. Цена с НДС
Котел КВ ГМ под отечественную горелку
Лизинг
Вид топкиМазутная горелка
Максимальная тепловая мощность, МВт1.28
ТопливоМазут, Жидкое
Отапливаемая площадь, м²9900-14200
927 000 р. Цена с НДС
Котел КВ ГМ под отечественную горелку
Лизинг
Вид топкиГазовая горелка
Максимальная тепловая мощность, МВт1.25
ТопливоГаз
Отапливаемая площадь, м²9500-13600
927 000 р. Цена с НДС
Котел под горелку российского производства
Лизинг
Вид топкиДизельная горелка
Максимальная тепловая мощность, МВт1.25
ТопливоДизель, Жидкое
Отапливаемая площадь, м²9500-13600
927 000 р. Цена с НДС
Вы просматривали эти товары
Котел КВ ГМ под отечественную горелку
Лизинг
Вид топкиМазутная горелка
Максимальная тепловая мощность, МВт1.25
ТопливоМазут, Жидкое
Отапливаемая площадь, м²9500-13600
927 000 р. Цена с НДС
Паровой котел КП 300 на дизеле
Лизинг
Производительность, кг/ч300
ТопливоДизель
Температура пара, не более, °C130
Давление пара, не более, МПа0.17
607 230 р. Цена с НДС
Котел КВ ГМ под отечественную горелку
Лизинг
Вид топкиМазутная горелка
Максимальная тепловая мощность, МВт1.28
ТопливоМазут, Жидкое
Отапливаемая площадь, м²9900-14200
927 000 р. Цена с НДС
Котел КВ ГМ под отечественную горелку
Лизинг
Вид топкиМазутная горелка
Максимальная тепловая мощность, МВт3
ТопливоМазут, Жидкое
Отапливаемая площадь, м²25000-32900
1 383 000 р. Цена с НДС
background